Overview
- Updated On:
- 10 de abril de 2026
- 2 Bathrooms
- 108 m2
- 3 Bedrooms
- Year Built: 1964
Description
Luminoso Piso Reformado A Estrenar En Rambla de Brasil, Barcelona, Sants-Montjuïc,
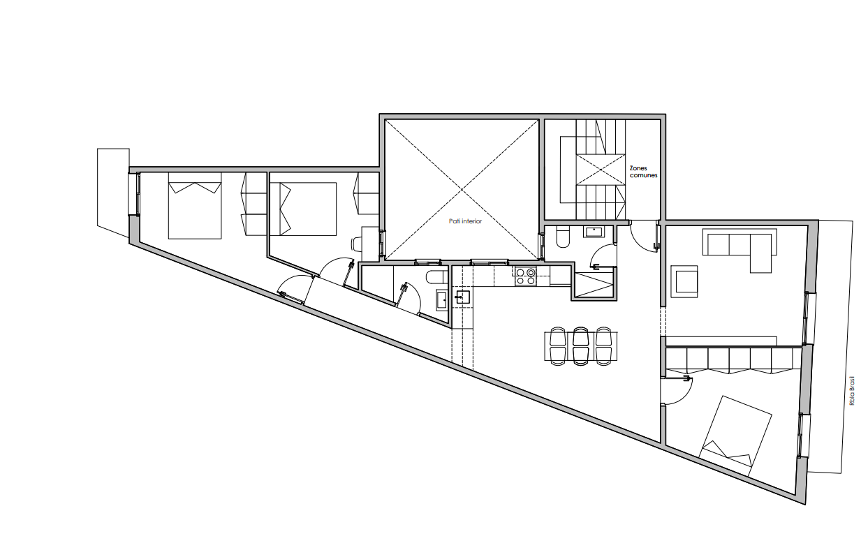
Te presentamos esta fantástica vivienda situada en Rambla de Brasil, en una zona residencial consolidada y muy bien comunicada de Barcelona. este piso ofrece una distribución cómoda y funcional, ideal tanto para familias como para quienes buscan una vivienda amplia en la ciudad.
La propiedad cuenta con
3 habitaciones,
2 baños completos,
Salón-comedor amplio y luminoso, perfecto para el día a día y para reuniones,
Cocina independiente con una práctica
zona de lavandería.
Balcón, aportando un agradable espacio exterior y mayor entrada de luz natural.
Ubicado en una 5ta planta
Rambla de Brasil se encuentra en el distrito de Sants-Montjuïc, una zona tranquila y a la vez muy bien equipada, con todo tipo de comercios, supermercados, colegios, centros de salud y restaurantes a pocos pasos. Es un barrio con vida de barrio, ideal para quienes valoran la comodidad sin renunciar a buenas conexiones con el resto de la ciudad.
Transporte:
La vivienda goza de excelentes comunicaciones mediante transporte público, con varias líneas del metro y autobús cercanas,
Metro: Plaça de Sants (L1)(L5) y Badal (L5), .
Accesos rápidos a vías principales facilita tanto los desplazamientos urbanos como las salidas de la ciudad.
Una oportunidad perfecta para vivir en una zona bien conectada, con todos los servicios y en una vivienda cómoda y luminosa.
- Principal and Interest
- Property Tax
- HOA fee



















































































