Overview
- Updated On:
- 24 de noviembre de 2025
- 2 Bathrooms
- 110 m2
- 3 Bedrooms
- Year Built: 1975
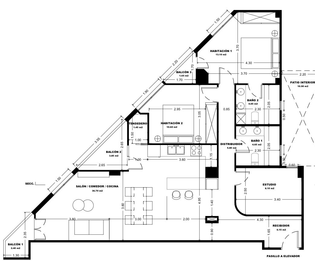
Description
Este piso reformado, ubicado en la segunda planta de una finca en la calle Diputació, combina elegancia, comodidad y funcionalidad.
Dispone de:
3 habitaciones
2 baños
Salon Comedor
Cocina Equipada con electrodomesticos nuevos
3 balcones
Los 3 balcones que aportan mucha luz natural y una agradable ventilación. La reforma ha respetado el carácter del edificio, incorporando acabados modernos y de alta calidad que lo convierten en una vivienda lista para entrar a vivir.
En pleno corazón del Eixample, en el barrio de la Antiga Esquerra, este piso se encuentra rodeado de arquitectura modernista, tiendas locales, cafeterías, restaurantes y servicios de proximidad. A muy poca distancia de la Universitat de Barcelona, el Hospital Clínic y el Mercat del Ninot, esta zona es perfecta para quienes valoran la vida urbana, el diseño y la cultura
Perfectamente comunicado con el resto de la ciudad:
Autobuses: Varias líneas disponibles en Comte d’Urgell – Gran Via y Villarroel – Gran Via, ambas muy cercanas.
Metro: Estación Urgell (L1) a pocos minutos caminando.
Ideal para quienes buscan una vivienda reformada, bien ubicada y con el encanto del Eixample barcelonés. ¡Un hogar con alma en una de las mejores zonas de la ciudad!
- Principal and Interest
- Property Tax
- HOA fee











































