Overview
- Updated On:
- 23 de febrero de 2026
- 1 Bathrooms
- 71 m2
- 2 Bedrooms
- Year Built: 1965
Description
Piso reformado a estrenar en Sant Andreu – Barcelona
Ubicado en calle Espronceda, en el barrio de Sant Andreu, entre calle Sant Antoni Maria Claret y Avenida Meridiana, Situada en una finca del año 1965, combina el encanto de un edificio consolidado con las comodidades de una reforma moderna.
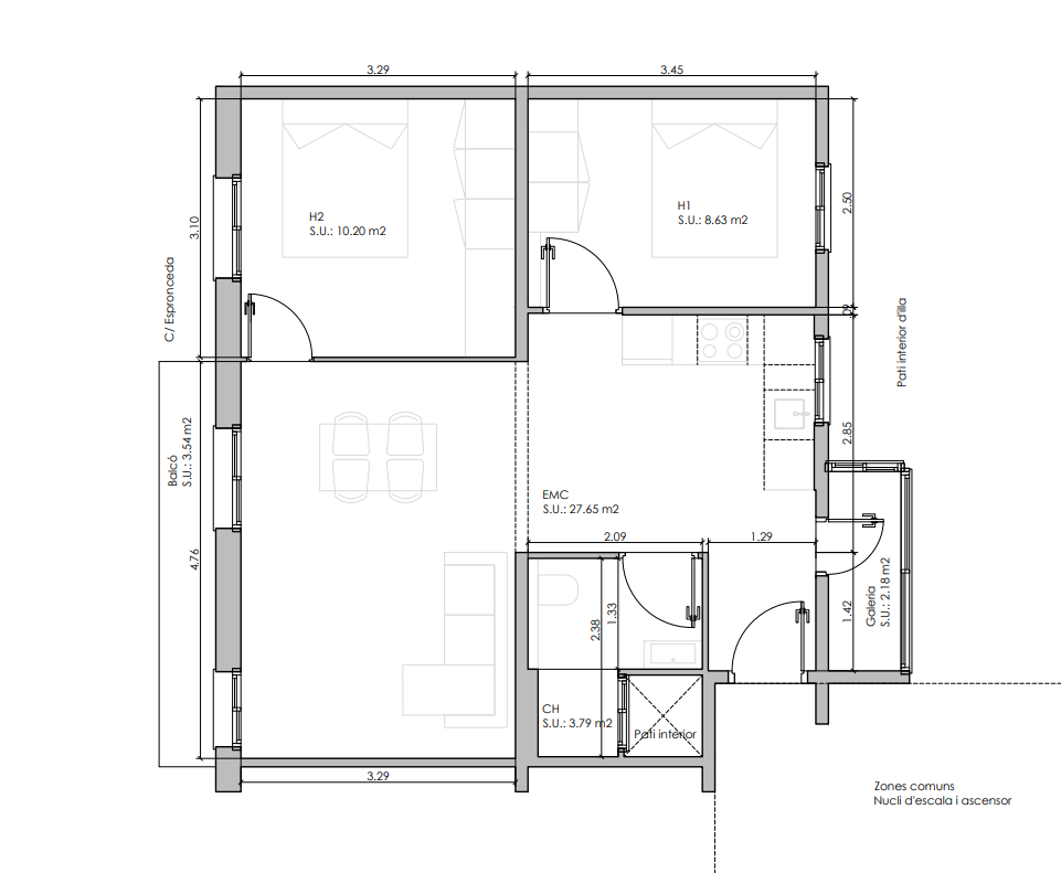
La vivienda ha sido reformada íntegramente a estrenar y ofrece una distribución cómoda y funcional:
- 2 habitaciones
- 1 baño completo
- Cocina equipada
- Salón-comedor luminoso con salida a balcón
- Balcón con vistas a la calle
- Aire acondicionado por conductos
- 2a planta
Transporte público:
A solo 3 minutos a pie de la estación de La Sagrera,
trenes y Metro L5, L1,
rodeado de diferentes líneas de autobús.
Sant Andreu se caracteriza por ser un barrio residencial muy familiar, con una oferta completa de servicios de proximidad como comercios tradicionales, mercados locales, supermercados, colegios y centros de salud. Esto lo convierte en una zona atractiva para familias, parejas y profesionales que buscan calidad de vida sin renunciar a la comodidad.
Ideal tanto para vivir como para invertir, en una zona muy bien comunicada y con todos los servicios a su alrededor.
- Principal and Interest
- Property Tax
- HOA fee



